全国免费服务热线
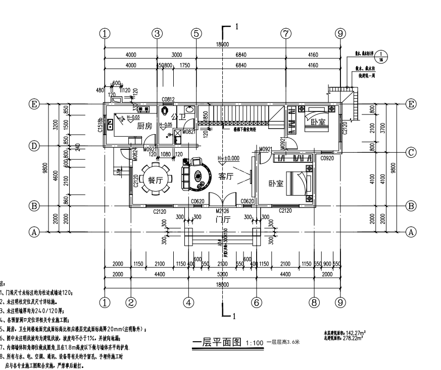
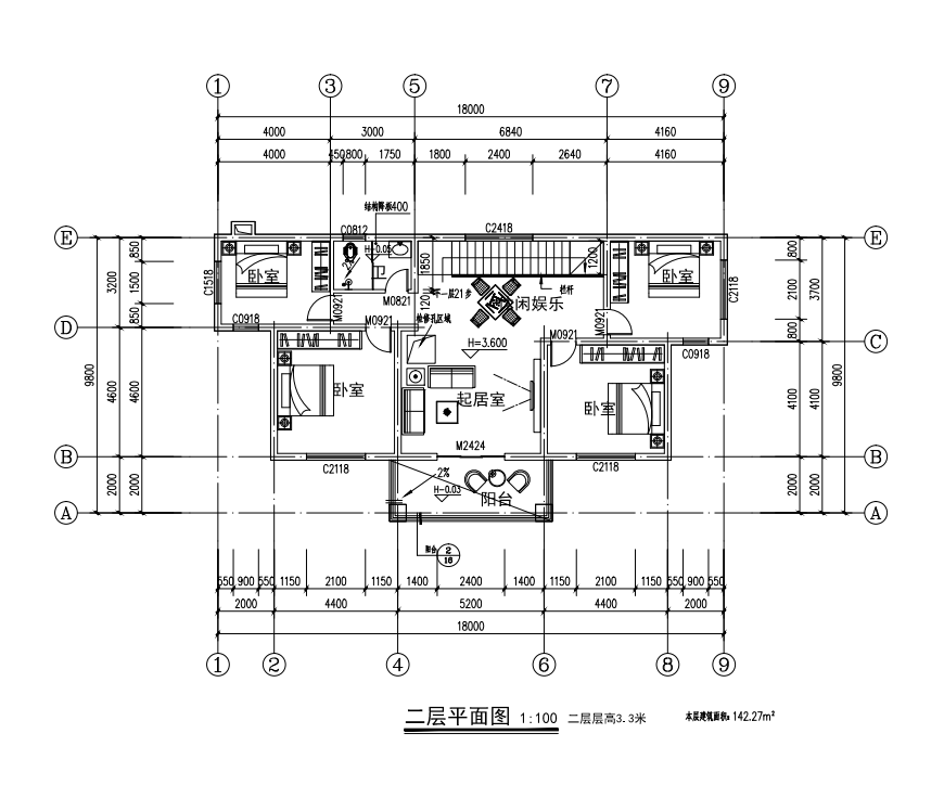
建筑面积:278.22平米 占地面积:142.27平米 占地尺寸:18MX9.8M 结构形式:框架结构/砖混结构 建筑层数:2层 外墙装饰:水包砂、文化石等
占地面积:95平米
占地面积:162.5平米
占地面积:249.86平米
占地面积:90平米
渝公网安备 50010702503256号